A Borg Company

Panel Manufacturing

Crossmuller’s electrical and engineering service consults to a diverse range of business sectors. All manufacturing is executed at its facility in Somersby NSW, with in house capabilities to service all aspects of electrical panel manufacturing to the East Coast of Australia.


Electrical Panel Manufacturing


Electrical Consulting

Crossmuller’s extensive team of experienced, cross-disciplinary professional engineers and industry experts cover all aspects of the electrical trade from residential through to commercial and industrial. With many years of experience in the trade focusing on efficiency and productivity, the team ensures job fulfillment to the highest standard. Consulting for a wide range of applications, Crossmuller can provide tailor-made solutions for all projects big or small.


Design & Engineering

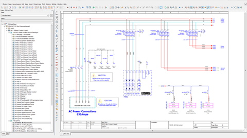
Crossmuller’s Electrical Service is comprised of electrical engineers that are experienced in all areas of design, including initial layout and concept through to final implementation and installation. With unrivalled service, including strict measures to ensure that all designs comply with Australian Standards, Crossmuller can provide a complete design solution to assist with all electrical schematic and documentation needs.

  • Layout and concept design
  • Main Switchboard Design
  • Panel Specification & Design
  • CAD Drawing Services

Electrical Cabinet Building

With a large team of experienced industry experts, Crossmuller can help develop industry-standard electrical cabinets in its state-of-the-art workshop, creating some of the most advanced designs in the world using Electrical CAD software. In conjunction with the Build team, the software is utilised to construct electrical cabinetry to the highest standards.

The team at Crossmuller have vast knowledge and experience in power distribution, automation, motor control centres, safety control and networking systems, covering all requirements in the electrical automation field.

  • MCC – Main Control Cabinet
  • Electrical panels
  • Control panels
  • Panel Building

Install & Commission

Crossmuller services the entire East Coast of Australia, enabling efficient installation and commissioning of all project needs with experience in all aspects of electrical installation to deliver the best outcome for businesses. Crossmuller’s designs cater for plug and play solutions for decentralised motor control and IO systems, making slow install times a thing of the past.


Our Partners

Siemens Global
Allen Bradley Factory Automation Equipment
Schneider Electric
Rittal Systems
SEW Eurodrive
Balluff
Leuze
Pepperl Fuchs
Phoenix Contact Electrical Engineering
Sick AG Sensor
IFM Automation Technologies
Tricab
LAPP


top